Master Plans
Transform your vision into reality with English & Associates' strategic master planning expertise. Our comprehensive approach to large-scale residential development encompasses market analysis, phasing strategies, and long-term growth planning for multifamily communities throughout the Southeast.
Principal David A. English, AIA brings over three decades of experience to every master plan, having successfully planned 200,000+ residential units across diverse markets. We specialize in creating flexible development frameworks that adapt to changing market conditions while preserving your project's core vision and financial objectives.
Our master planning process includes demographic analysis, infrastructure planning, regulatory compliance strategies, and sustainable design principles that position your development for long-term success in Georgia, Alabama, Florida, and beyond.


Mixed Use
Create vibrant, economically diverse communities with English & Associates' mixed-use design solutions. We excel at blending residential living with commercial vitality, designing projects where people can live, work, shop, and gather within walkable, interconnected spaces.
Our mixed-use expertise spans urban revitalization projects, suburban lifestyle centers, and transit-oriented developments. We navigate the complex interplay of zoning codes, parking requirements, and diverse user needs to deliver cohesive designs that serve residents, retailers, and office tenants equally well.
From ground-floor retail with luxury apartments above to integrated office-residential complexes, we create mixed-use environments that drive foot traffic, build community, and generate sustainable returns for developers across the Southeast.
Site Plans
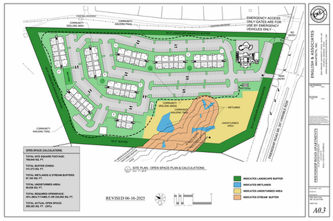
Maximize every square foot of your development potential with English & Associates' precision site planning. Our technical expertise transforms challenging sites into efficient, beautiful residential communities through careful analysis of topography, utilities, drainage, and regulatory constraints.
We solve complex site puzzles, from steep slopes and wetlands to tight urban parcels, creating layouts that optimize unit density while preserving natural features and ensuring code compliance. Our site plans integrate seamlessly with architectural design, reducing construction costs and timeline delays.
Every site plan reflects our deep understanding of multifamily development economics, incorporating strategic building placement, efficient circulation patterns, and amenity positioning that enhances both marketability and operational efficiency for property managers.


Preliminary Site Plans & Density Studies
The most critical first step in any commercial or multifamily project is determining its feasibility. English & Associates offers rapid, hand-drawn Sketch Plans to help developers quickly answer the crucial question: "Do I have a project?".
Our rough drawings provide an essential, high-level architectural assessment of your raw land, transforming a piece of property into a visual concept. This service is specifically designed to minimize risk by identifying immediate challenges and clarifying development potential.





















